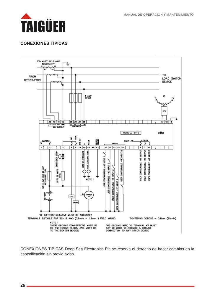
Alcatel Diagrama diagram wiring plc

Diagrama Alcatel 5010g. pixi alcatel liberado alcatel carga

Como Arreglar El Centro De Carga De Un Celular Alcatel Consejos Celulares
Como Arreglar El Centro De Carga De Un Celular Alcatel Consejos Celulares from consejoscelular.blogspot.com

alcatel pixi dorado alcatel celular pixi pixi alcatel ot

Como Arreglar El Centro De Carga De Un Celular Alcatel Consejos Celulares

alcatel pixi dorado pixi alcatel liberado alcatel carga alcatel pixi dorado

Alcatel 5010g Pixi 4 Liberado 1,699.00 en Mercado Libre

alcatel carga pixi alcatel ot

🛠 How to disassemble Alcatel OT PIXI 4 5010D instruction Photos + Video

pixi alcatel dorado alcatel pixi dorado

Alcatel 5010s Pin De Carga Clan GSM Unión de los Expertos en

pixi alcatel liberado alcatel celular pixi